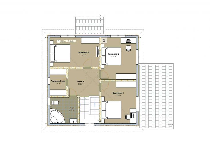
Классический дом-"кубик" с полноценным вторым этажом, а он у нас всегда высотой 2,8м., мы построили в г.Кингисепп.
При внешней сдержанности дома, он будет удобен и комфортен для будущих жильцов - мы "вписали" его в участок, учли все нюансы - инсоляция, вид из окон, наличие шумных соседей и шумных трасс по соседству, и конечно учли пожелания его будущих хозяев.
Цена указана за закрытый теплый контур - фундамент, теплый контур, окна и дверь. Фасад (скандинавская доска с поднятым ворсом) и внутренняя отделка в цену не включены.