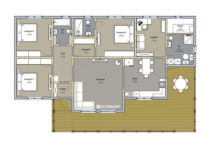
Барнхаус, или Барн ( Barn), это популярнейший сейчас формат домов. Мы начали строить этот барн в д. Пеники, что под Санкт-Петербургом. За основу был взят наш проект Сканди-139, переработан и перепакован в формат барна. В доме - кухня-гостиная площадью 41м2. со вторым светом, четыре комнаты, два санузла, сауна, котельная "под газ" и открытая терраса. Дом "вписан" в участок, учтено все - инсоляция, вид из окон, наличие шумных соседей и шумных трасс по соседству, учтены все пожелания его будущих хозяев. Дом строится в комплектации Оптимум - это закрытый теплый контур с фасадом, окнами, чердачная лестница, система снегозадержания и водосточная системой, фундамент - забивные железобетонные сваи, и конечно доставка, комплектующие и качественная сборка дома под надзором инженера технадзора. Дом построен в апреле 2023 года.