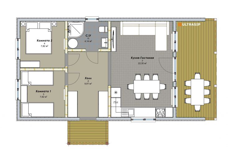
Построили первые два дома под сдачу в живописнейшем месте под Выборгом. В доме - кухня-гостиная площадью 22м2. две комнаты, просторный санузел и уютная небольшая терраса с видом на водоем. Дома построены в комплектации Оптимум - это закрытый теплый контур с фасадом, террасой, окнами, чердачной лестницей, системами снегозадержания и водосточной, вентпакетом УЛЬТРАВЕНТ, фундаментом, и конечно доставкой, комплектующими и качественной сборкой дома под надзором инженера технадзора.