На заставке - счастливые заказчики этого построенного нами дома - Дмитрий и Дарья!
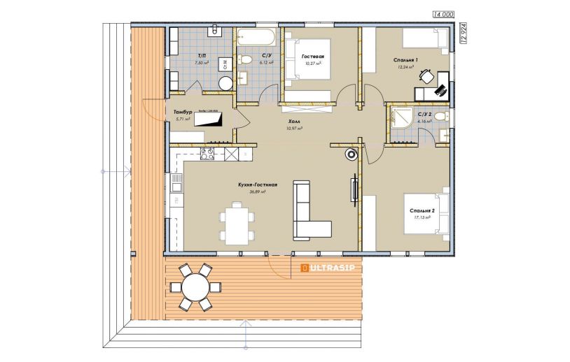
О доме: Современный продуманный дом в актуальном сегодня стиле, его называют Барнхауз, или Барн. В этом доме есть все, что нужно для комфортной жизни: Обширная кухня-гостиная площадью 37м2. с панорамным остеклением, громадная терраса площадью 43м2., два санузла и три жилых комнаты.
В цену входит полностью законченный теплый контур с фундаментом и кровлей, с фасадом, окнами, дверью, вентиляцией, кухонной вытяжкой, террасой, чердачной лестницей, системой снегозадержания и водосточной системой.
Во вкладке "видео" - подробный рассказ заказчиков о своем доме, не пропустите!