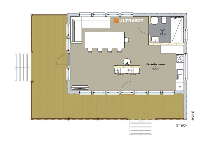
Нечасто строятся дома, в которых площадь террасы равна площади теплого контура! Здесь - как раз такой случай.
Окон здесь кстати тоже больше чем в типовом доме в два раза большей площади. Мы спроектировали этот барн, учитывая пожелания заказчиков, "требования" участка, и уже его построили.
Дом построен нами в комплектации "закрытый теплый контур" - с вентиляцией, комбинированным фасадом из лиственницы/металла, хорошими, окнами, системами снегозадержания и водосточной, и конечно вошли комплектующие, доставка, монтаж, проживание бригады и вывоз мусора после окончания стройки. Пять лет гарантии с мгновенной обратной связью - в комплекте.