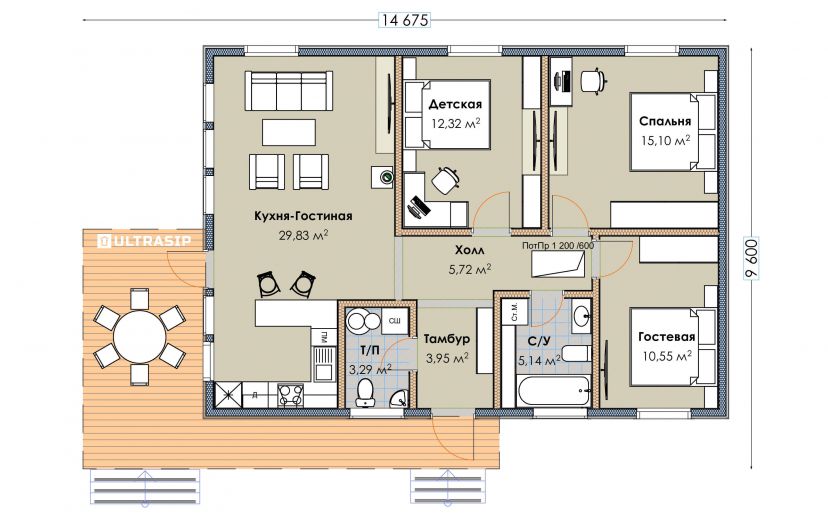
Интересная предыстория у дома, который мы построили в Рощино: Заказчику очень понравилась планировка нашего барнхауза УЛЬТРАБАРН, но совершенно не нравится сам стиль - барн (BARN).
И в тоже время очень нравится экстерьер нашего дома в Орехово, в скандинавском стиле и с разноуровневой кровлей.
Как итог - мы спроектировали симбиоз двух домов.
Цена указана за комплектацию "закрытый теплый контур" - фундамент, теплый контур, кровля, окна и техническая дверь.