Этот комфортабельный дом по индивидуальному проекту построен нами недалеко от Санкт-Петербурга, в д. Ексолово.
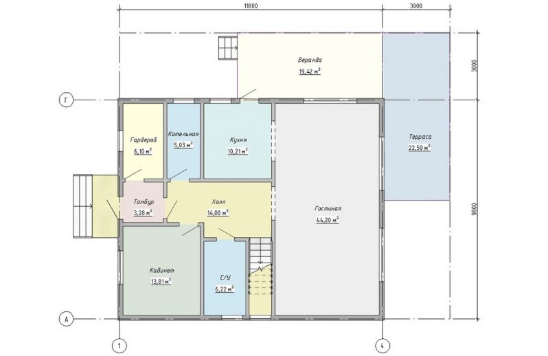
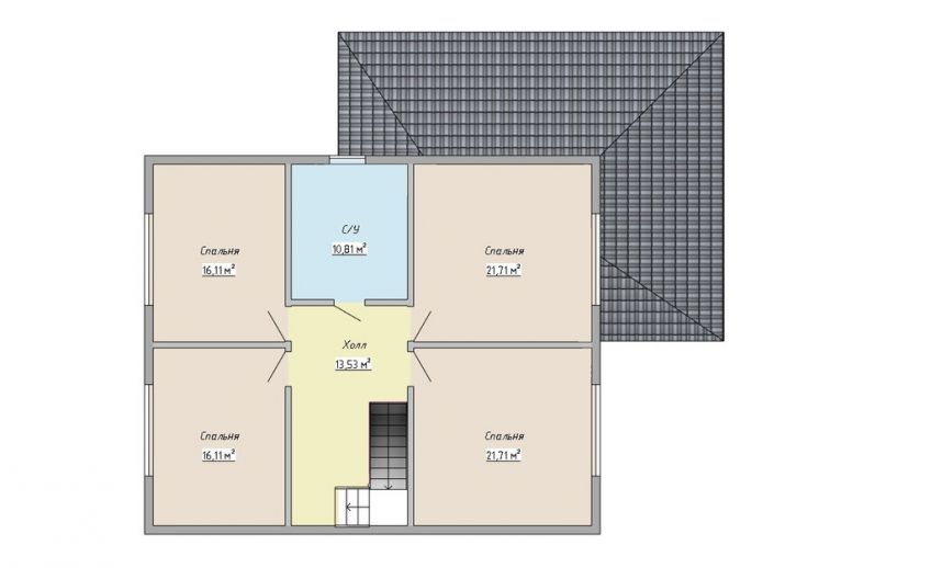
Проектом предусмотрено 5 спален, 2 санузла, котельная, гардеробная и громадная кухня-гостиная площадью 55 м2. Дополняет все это сориентированная на юго-запад частично застекленная терраса площадью 43 м2.!