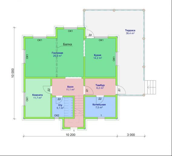
Этот дом мы построили по увеличенной версии популярного проекта Оптимум - Оптимум плюс. Фундамент на винтовых сваях диаметром 108 мм., обвязанных антисептированным брусом 200х200 мм. Домокомплект из СИП панелей ULTRASIP® EXTRA (OSB-3 Калевала 12 мм, пенопласт ППС-17 высокой реальной плотности - 17,5 кг/м3). Нулевое и чердачное перекрытие из SIP панелей 224 мм, несущие стены из СИП-панелей 174 мм. Внутренние перегородки выполнены по каркасной технологии - стойки 45х145 с шагом 625 мм. и обшиты с одной стороны ОСБ. Традиционно для нас - пиломатериал на конструктив дома применен камерной сушки влажностью 10-16%, откалиброванный на четырехстороннем станке и заранее обработанный антисептиком.