У этого дома непростая история: Дом заказчику уже был однажды построен, но неправильно - смотрите прикрепленное видео.
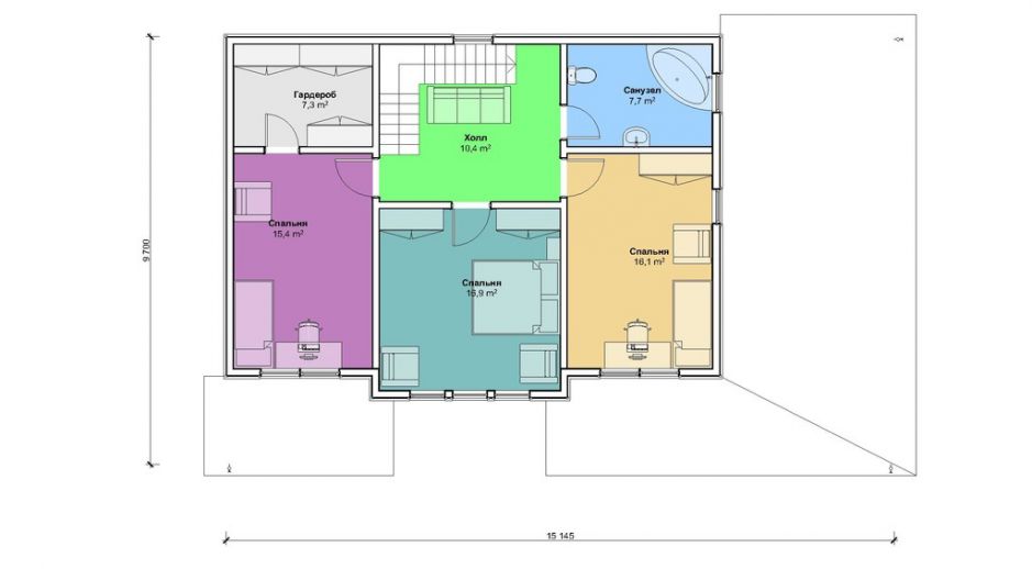
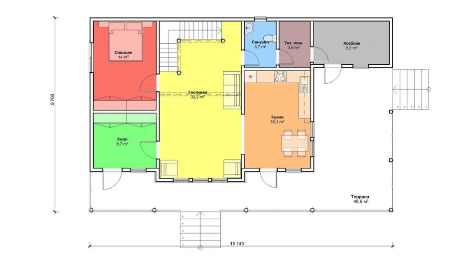
В итоге дом снесен, мы построили УШП - Утепленную Шведскую Плиту, и построили новый дом, повторяющий планировочные решения снесенного.
Фундамент дома (входит в цену) - современная энергоэффективная Утепленная Шведская Плита (УШП). Ее заранее смонтировало наше фундаментное подразделение ULTRAFUNDAMENT