Мы построили этот дом с удачной планировкой недалеко от Петербурга - в д. Горки под Гатчиной.
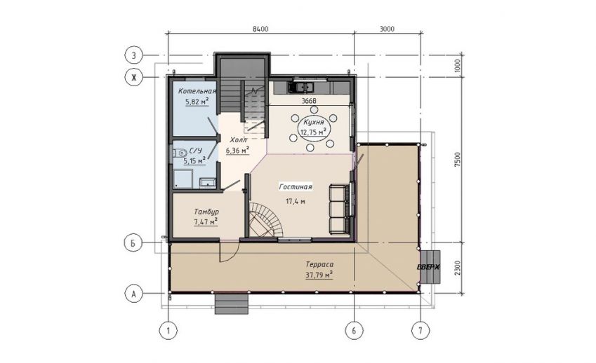
Несмотря на небольшие размеры дома, в доме три спальни, два санузла и достойная кухня-гостиная площадью 30м2.
Конструктив дома проверенный - в чердачном перекрытии использованы ULTRASIP® EXTRA толщиной 224мм , стены - из панелей толщиной 174мм.
Фундамент дома (входит в цену) - современная энергоэффективная Утепленная Шведская Плита. Ее смонтировало наше фундаментное подразделение ULTRAFUNDAMENT .
Фасад дома (не входит в цену) – покрашенная в заводских условиях фасадная доска с тонкопиленой поверхностью. Размер фасадной доски - 20х145 мм.