Готово нулевое перекрытие из толстых и теплых 224х панелей.
Собран первый угол стен.
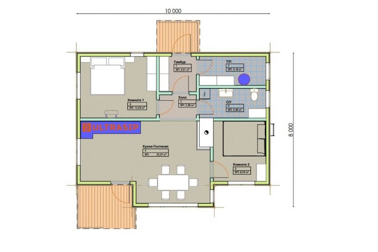
Собраны стены и перегородки первого этажа.
Собираем стропильную систему и фронтоны кровли.
Собираем стропильную систему и фронтоны кровли.
Собираем стропильную систему и фронтоны кровли.
Собираем стропильную систему и фронтоны кровли.
Идет монтаж металлочерепицы.
Установлены окна, дом защищен нашей фирменной ветровлагозащитой.
Эркер на юг.
Гостиная
Гостиная
Гостиная
Гостиная
Скоро приедет фасад из скандинавской доски с поднятым ворсом.
Скоро приедет фасад из скандинавской доски с поднятым ворсом.
Фасад и внутренняя отделка смонтированы.
Конструктив
Домокомплект из СИП панелей ULTRASIP® EXTRA (OSB-3 Калевала 12 мм, пенопласт ППС-17 высокой реальной плотности - 18 кг/м3).
Чердачное перекрытие из SIP панелей толщиной 224 мм, наружные стены из СИП-панелей 174 мм.
Перегородки внутри - каркасные, обшиты с одной стороны ОСБ 12 мм.
фундамент - винтовые сваи диаметром 108 и 133 мм.
Пиломатериал, применяемый при сборке дома - камерной сушки влажностью 10-16%, простроган на четырехстороннем станке, и заранее, в цеху, обработан антисептиком.