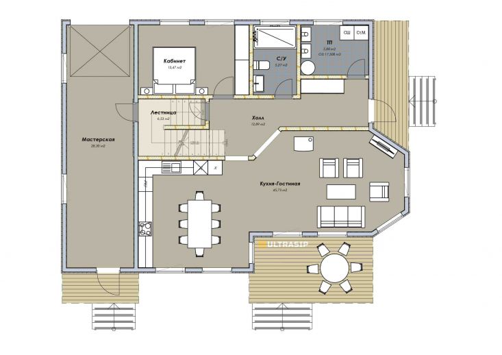
При проектировании этого дома был взят за основу построенный нами ранее дом в Турышкино. Мы адаптировали исходный проект под участок, вид из окон, соседей, пожелания заказчиков и учли сотни нюансов, и уже приступили к постройке этого дома. Пристроенная мастерская предназначена для ремонта сельскохозяйственной техники и имеет откатной заезд-пандус.
В указанную цену входит закрытый теплый контур с фасадом, окнами, входной дверью, системами снегозадержания и водостока, террасой, перилами, крылечками, отделкой цоколя, вентпакетом УЛЬТРАВЕНТ, и конечно доставка, монтаж дома и все комплектующие.
Монтаж инженерных сетей и внутренней отделки в указанную сумму не входит.