Это двадцать третья реализация известного и популярного проекта. В пригороде г. Клин, что под Москвой, в тихом месте мы построили этот комфортный и красивый дом с продуманной планировкой. Высота стен первого и второго этажа - 2,8 метра.
Заняла проектное положение толстая, красивая и долговечная металлочерепица Стальной Бархат.
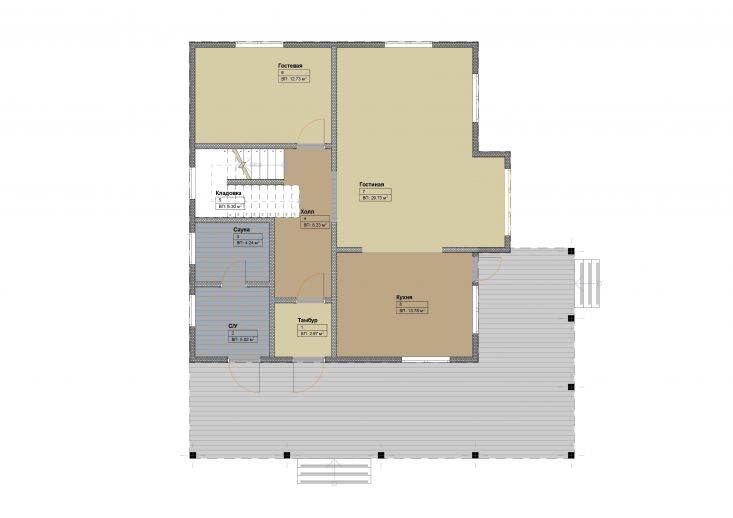
Кухня и гостиная.
Кухня и гостиная.
Кухня и гостиная.
Дом в подарок защищен ветровлагозащитной мембраной ULTRASIP® Защита дома
Хорошо видно террасу площадью 38м2.
Произведена уборка территории и вывоз мусора.
Дом сдан. Остальные работы заказчик произведет самостоятельно.
Конструктив
Домокомплект из СИП панелей ULTRASIP® EXTRA (OSB-3 Калевала 12 мм, пенопласт ППС-17 высокой реальной плотности - 18 кг/м3).
Нулевое и чердачное перекрытия SIP панелей толщиной 224 мм, межэтажное - по каркасной технологии. Наружные стены из СИП-панелей 174 мм. Перегородки внутри - каркасные, обшиты с одной стороны ОСБ 12 мм.
Пиломатериал, применяемый при сборке дома - камерной сушки влажностью 10-16%, простроган на четырехстороннем станке, и заранее, в цеху, обработан антисептиком.