Этот продуманный одноэтажный дом из СИП-панелей построен нами в д.Никольское под Санкт-Петербургом.
Мы проектировали этот дом, учитывая требования участка и конечно запросы заказчиков, при этом учтены все нюансы его будущей эксплуатации для обеспечения комфорта проживания жильцов.
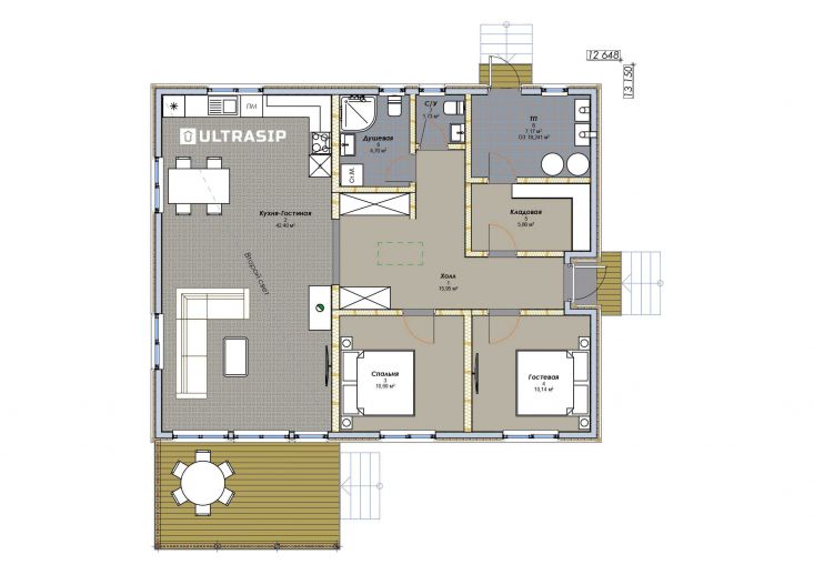
Две комнаты достаточной площади, два санузла, кладовая, громадная для такой площади дома кухня-гостиная площадью 42м2. и техпомещение "с запасом" площадью 7м2. - все комфортно и удобно.