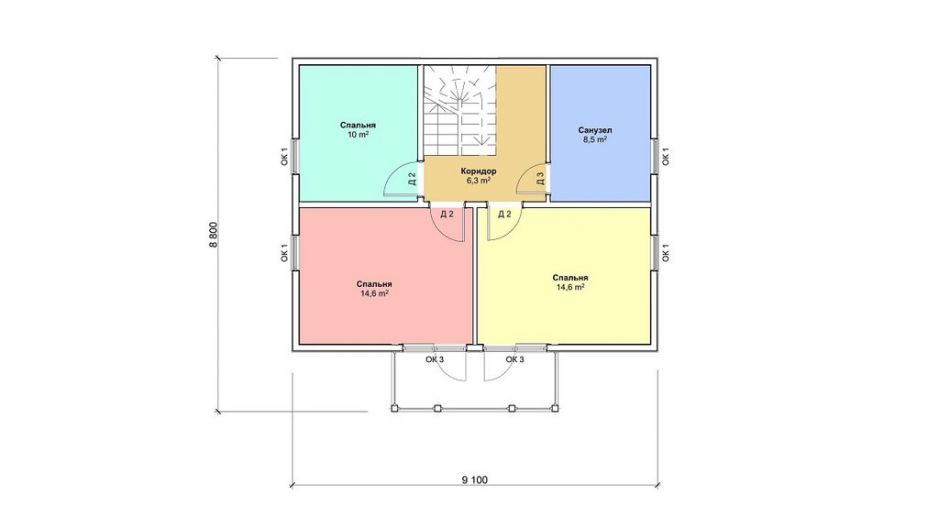
В ближайшем пригороде Пскова мы построили этот красивый и теплый дом с грамотной и лаконичной планировкой. Высота стен первого этажа - 2.8 м., второго, мансардного в коньке - 3,5 метра.
Смонтировано нулевое перекрытие из толстых и теплых панелей толщиной 224мм.
Готовы стены первого этажа.
Балки межэтажного перекрытия готовы к монтажу чернового пола из ОСБ толщиной 22мм.
Межэтажное перекрытие готово.
Начат монтаж стен второго, мансардного, этажа.
Качество монтажа металлочерепицы на кровле видно хорошо!
Монтаж теплого контура закончен. Снят теплый и душевный отзыв заказчика.
Конструктив
Домокомплект из СИП панелей ULTRASIP® EXTRA (OSB-3 Калевала 12 мм, пенопласт ППС-17 высокой реальной плотности - 17,5 кг/м3).
Нулевое и мансардное перекрытия SIP панелей толщиной 224 мм, межэтажное - по каркасной технологии. Наружные стены из СИП-панелей 174 мм. Перегородки внутри - каркасные, обшиты с одной стороны ОСБ 12 мм.
Пиломатериал, применяемый при сборке дома - камерной сушки влажностью 10-16%, простроган на четырехстороннем станке, и заранее, в цеху, обработан антисептиком.