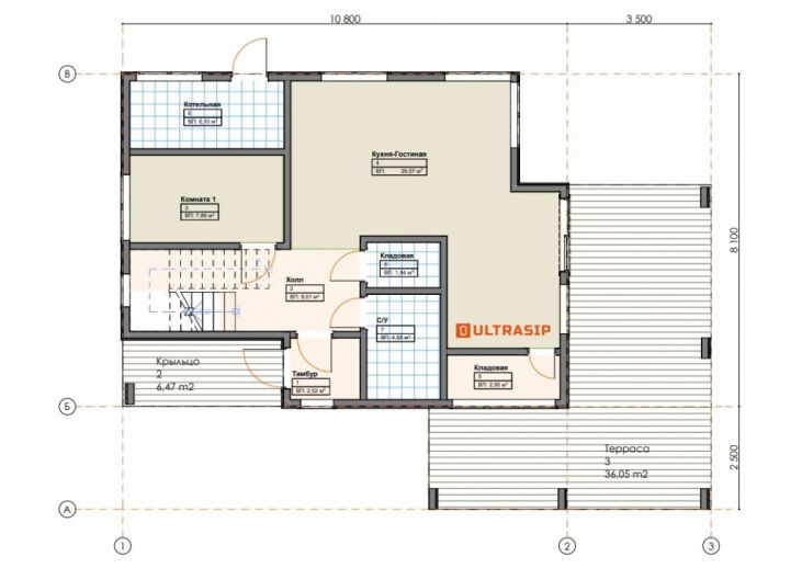
Мы построили этот дом современной архитектуры с плоской кровлей недалеко от Санкт_Петербурга - в д. Большие Пороги.
Конструктив дома оптимальный - в чердачном перекрытии использованы ULTRASIP® EXTRA толщиной 224мм , стены - из панелей толщиной 174мм.
Фундамент дома - современная энергоэффективная Утепленная Шведская Плита. Ее смонтировало наше фундаментное подразделение ULTRAFUNDAMENT .
В цену вошел закрытый теплый контур - УШП, теплый контур, окна, дверь.