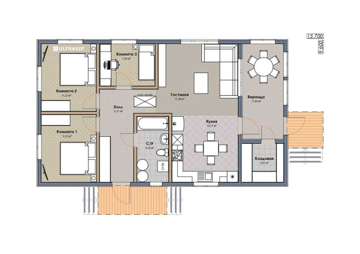
Мы построили этот одноэтажный дом из СИП-панелей в Лужской области. Проектировали его, учитывая требования участка и конечно запросы заказчиков, при этом учтены все нюансы его будущей эксплуатации для обеспечения комфорта проживания жильцов. Отличительная особенность дома - наличие теплой веранды вместо террасы.
Три комнаты достаточной площади, санузел, кладовая, кухня-гостиная площадью 32м2. и "петербургская веранда" - все комфортно и удобно.
В указанную цену вошел закрытый теплый контур - фундамент (здесь ЖБ-сваи), теплый контур, кровля, окна, дверь, и конечно доставка, сборка и комплектующие. Фасадная и внутренняя отделка с инженерными сетями в указанную цену не входит.