Закончили постройку дома с рациональной планировкой в традиционном стиле в Кингисеппе.
Проект - глубоко переработанный под участок и пожелания заказчиков популярный Оптимум-127.
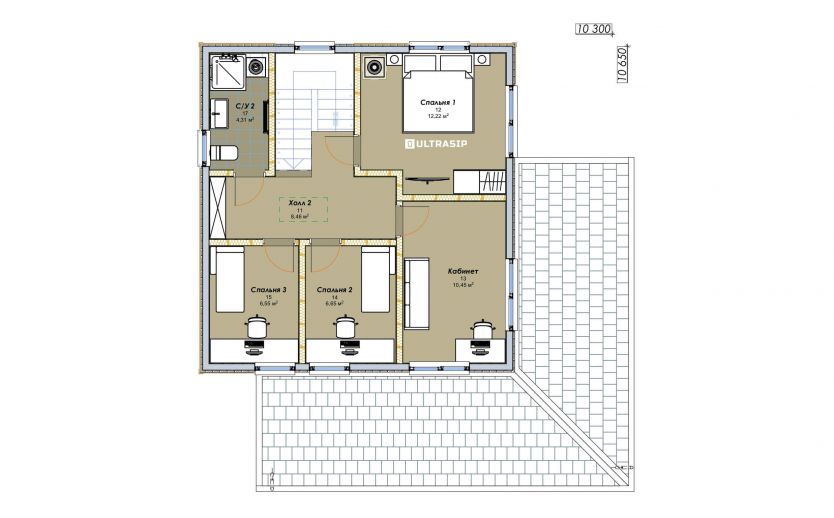
Несмотря на небольшие размеры, проектом предусмотрено четыре спальни, два санузла, сауна, гардеробная и достойная кухня-гостиная площадью 29м2.
В целом, по соотношению цена/качество/полезная площадь это один из самых сбалансированных форматов домов, рекомендуем к нему присмотреться.
В указанную цену вошел фундамент, теплый контур, кровля, окна, терраса с настилом из лиственницы и техническая дверь, а также доставка, сборка, комплектующие, проживание бригады и т.д.