Уникальный по энергоэффективности дом мы построили в д. Касимово, что под Санкт-Петербургом.
Наш фирменный пакет утепления "Оймякон Ультра" - перекрытие 300мм. ППС (вот статья об этих уникальных панелях), стены 200 - это восьмой дом в России с таким утеплением, первые семь тоже наши. Никто в России, кроме нас, не выпускает панели с таким утеплением.
Логично, что такой теплый дом строится на энергоэффективном скандинавском фундаменте УШП, Утепленная Шведская Плита. Ее наше фундаментное подразделение смонтировало заблаговременно.
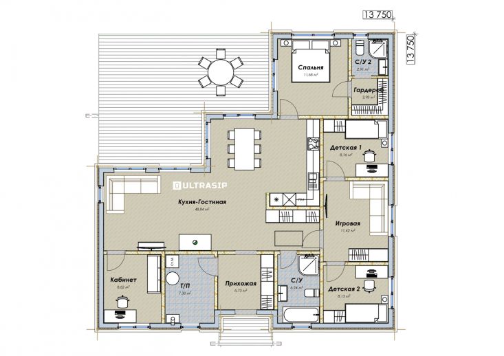
Проект дома - индивидуальный. Прообразом дома послужил известный шведский проект, мы адаптировали его к участку и учли пожелания заказчика.
В указанную стоимость вошел закрытый теплый контур - теплый контур, кровля, окна, техническая дверь, и конечно монтаж, доставка и все комплектующие. Стоимость УШП в указанную цену не вошла.