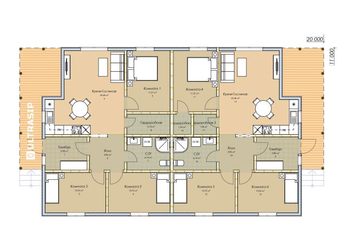
Дом на две семьи, или дуплекс, мы построили недалеко от Санкт-Петербурга, в Приладожском.
При проектировании дома с форматом и планировкой пришлось повозиться, но в итоге все пожелания заказчиков учтены и стройка началась.
Цена указана за закрытый теплый контур - фундамент на ЖБ сваях, теплый контур, кровля, настил террас, окна, двери, на момент стройки.