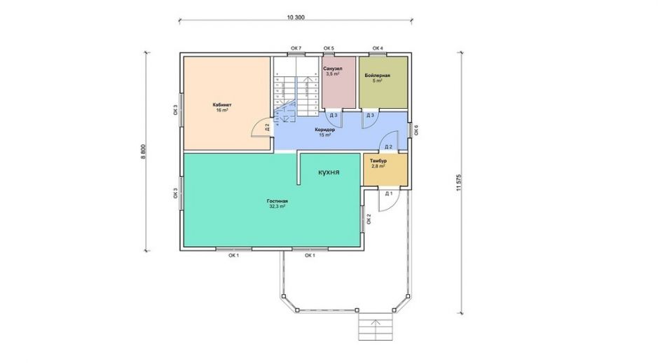
В ближайшем пригороде Санкт-Петербурга - деревне Низино, мы построили этот боьшой и продуманный дом по индивидуальному проекту. Высота первого этажа -2,8м., мансардного второго в коньке - 3,5м. В доме предусмотрены четыре спальни, два санузла, гардеробная и обширная кухня-гостиная площадью 32 м2.