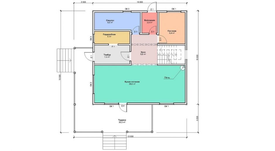
В ближайшем пригороде Санкт-Петербурга мы построили этот комфортный "купеческий" дом с продуманной планировкой. Высота стен первого и второго этажа - 2.8 м.
Теплый контур дома закрыт. Заказчик выбирает, каким быть фасаду дома.
Конструктив
Домокомплект из СИП панелей ULTRASIP® EXTRA (OSB-3 Калевала 12 мм, пенопласт ППС-17 высокой реальной плотности - 17,5 кг/м3).
Нулевое и чердачное перекрытия SIP панелей толщиной 224 мм, межэтажное - по каркасной технологии. Наружные стены из СИП-панелей 174 мм. Перегородки внутри - каркасные, обшиты с одной стороны ОСБ 12 мм.
Пиломатериал, применяемый при сборке дома - камерной сушки влажностью 10-16%, простроган на четырехстороннем станке, и заранее, в цеху, обработан антисептиком.