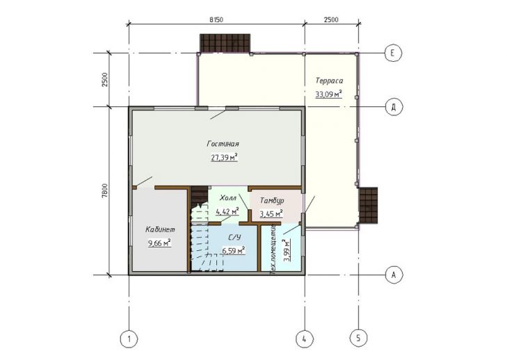
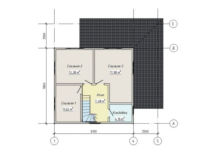
Этот симпатичный дом построен нами в ближайшем пригороде Петербурга - в п.Ропша.
Проект дома - это переработанный и оптимизированный проект Новоселье.
Домокомплект из СИП панелей ULTRASIP® EXTRA (OSB-3 Калевала 12 мм, пенопласт ППС-17 высокой реальной плотности - 18 кг/м3).