Построили рациональный дом с полноценным вторым этажом в Ленинградской области, но в урочище без электричества, сотовой связи и любой цивилизации. Особенность стройки - два километра практически отсутствующей дороги до участка. Отзыв заказчиков этого дома есть у нас на Яндексе.
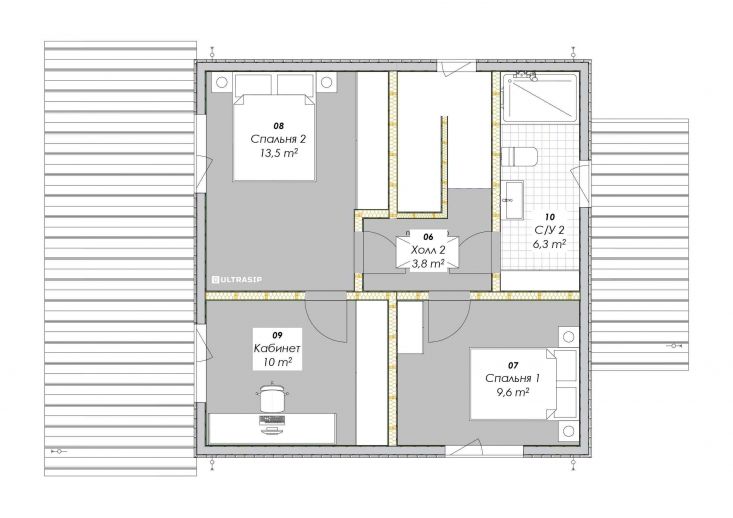
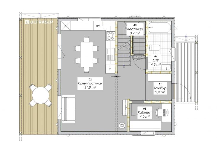
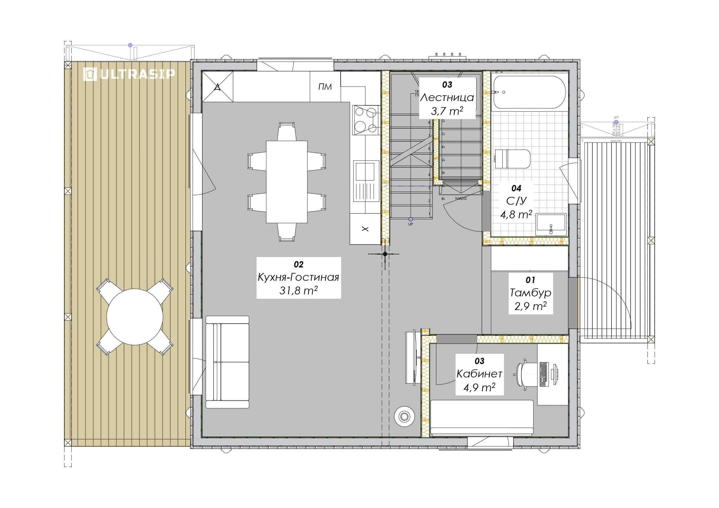
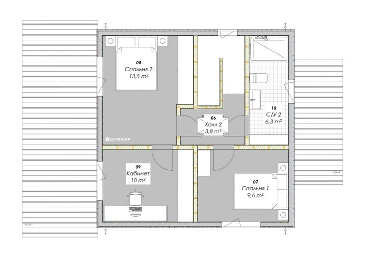
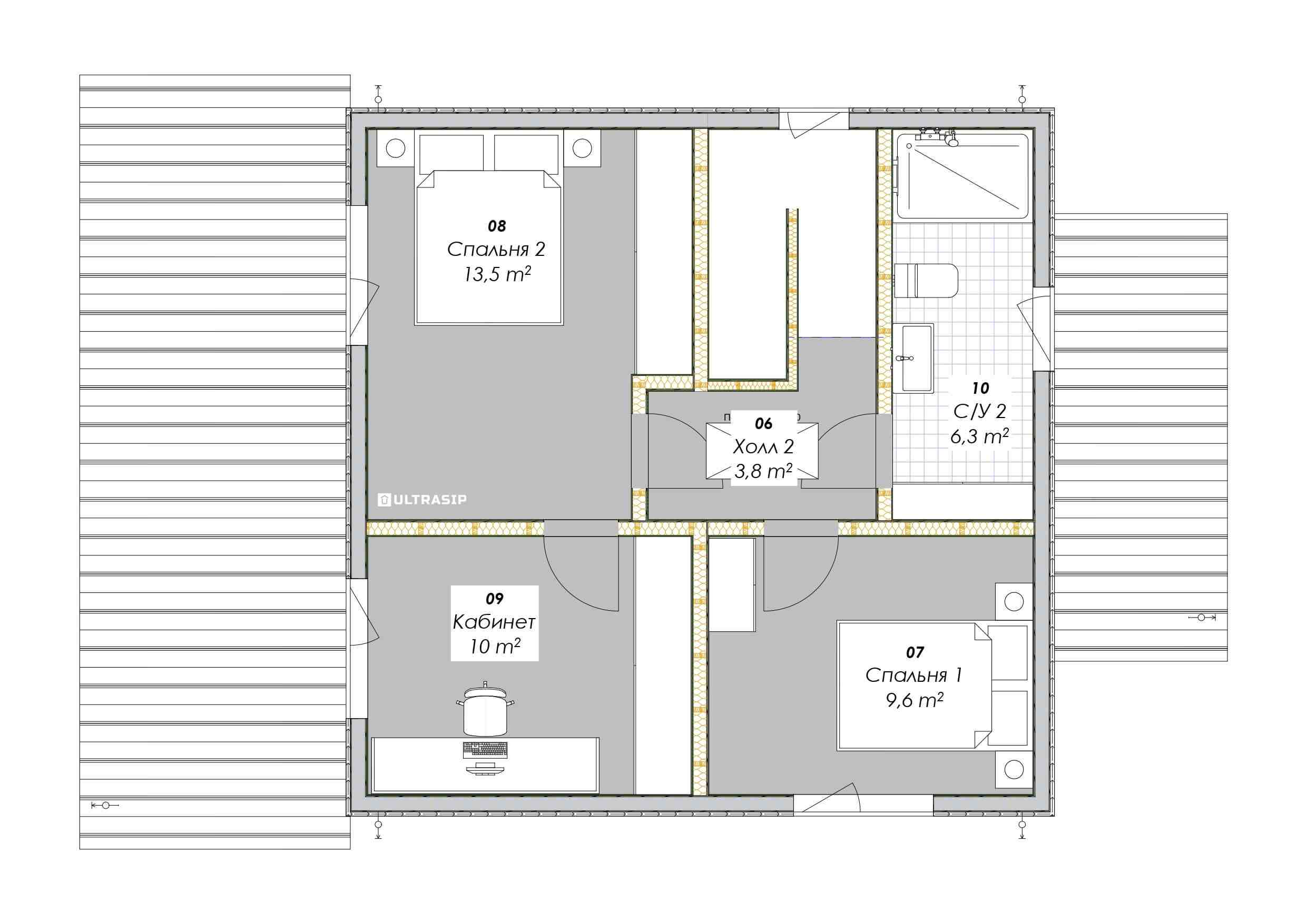
Как обычно, исходный проект (здесь - Оптимум-112) адаптирован под участок, и при проектировании учтены десятки факторов, влияющие на комфорт домочадцев.
Особенность стройки - полная оторванность от цивилизации и два километра практически отсутствующей дороги до участка.
Комплектация начальная - дом с окнами, входной дверью, террасой и крыльцом, системами снегозадержания и водосточной и т.д., но без фасада, внутренней отделки и фундамента (его уже сделал заказчик).