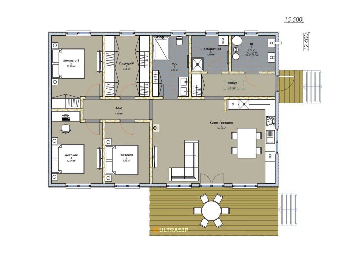
Адаптированная под участок и продуманная дом мелочей планировка - таков построенный нами дом в г. Всеволожск. Постирочная (!), гардеробная, техпомещение, три комнаты (хозяев, детская, гостевая) и просторная кухня-гостиная площадью 39м2 -предусмотрено все что нужно для комфорта. Конечно учтены инсоляция, вид из окон, расположение заезда, наличие шумных соседей и трасс по соседству, и еще множество нюансов.
Дом построен в комплектации Оптимум - это фундамент, закрытый теплый контур с фасадом, окнами, дверью, вентпакетом УЛЬТРАВЕНТ, готовой террасой и крыльцом, системами снегозадержания и водостока, без внутренней отделки.