Внутри дома идет процесс утепления холодной плиты дома, предоставленной нам заказчиком.
На крыше виден мини-подъемный кран для подъема пиломатериала на стропильную систему.
Монтируем мягкую кровлю Катепал.
Монтируем мягкую кровлю Катепал.
Монтируем мягкую кровлю Катепал.
Монтируем мягкую кровлю Катепал.
Монтаж теплого контура дома завершен.
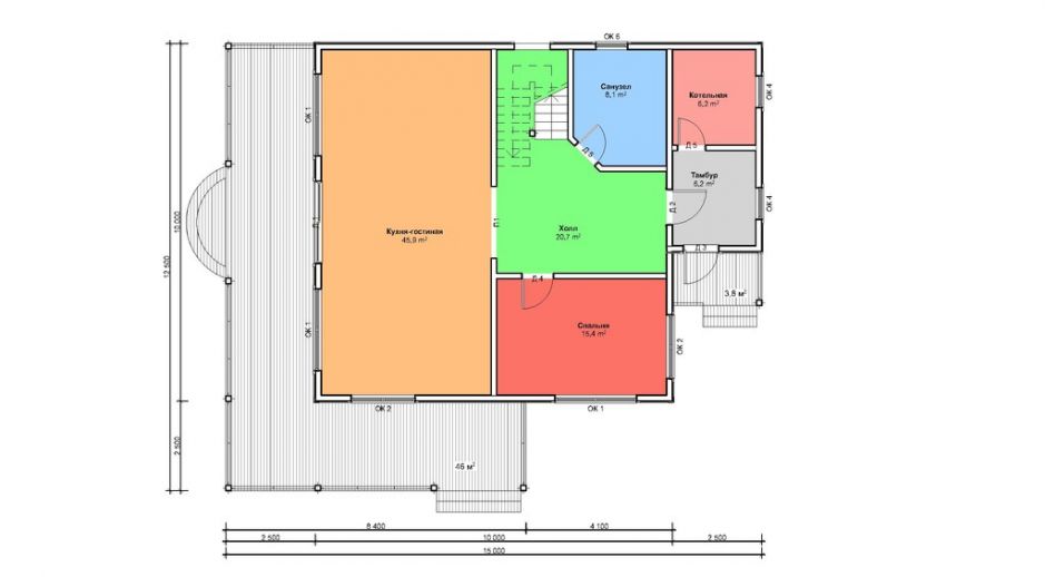
Конструктив
Домокомплект из СИП панелей ULTRASIP® EXTRA (OSB-3 Калевала 12 мм, пенопласт ППС-17 высокой реальной плотности - 17,5 кг/м3).
Чердачное перекрытия SIP панелей толщиной 224 мм, межэтажное - по каркасной технологии. Наружные стены из СИП-панелей 174 мм. Перегородки внутри - каркасные, обшиты с одной стороны ОСБ 12 мм.
Межэтажное перекрытие – ЛВЛ-брус сечений 45х300 и 51х300
Пиломатериал, применяемый при сборке дома - камерной сушки влажностью 10-16%, простроган на четырехстороннем станке, и заранее, в цеху, обработан антисептиком.