В ближайшем пригороде Санкт-Петербурга мы построили этот комфортный большой дом с продуманной планировкой по индивидуальному проекту. Высота стен первого этажа - 2.8 м., второго - 2,5 метра.
Сваи обвязаны брусом, и смонтировано нулевое перекрытие.
Монтируем стартовую доску для стен первого этажа.
Стены и перегородки первого этажа готовы.
Смонтировано межэтажное перекрытие и стены второго этажа.
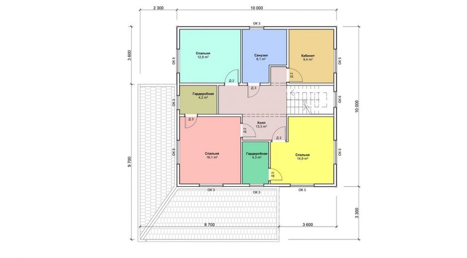
Начат монтаж чердачного перекрытия. Видна планировка второго этажа.
Стропильная система дома в процессе монтажа.
Стропильная система в процессе обработки антисептиком.
Живописные окрестности.
Закончен монтаж кровли и террасы.
Вид дома с высоты птичьего полета.
Дом сдан заказчику. Его отзыв и небольшой видеообзор дома смотрите в этой же теме.
Конструктив
Домокомплект из СИП панелей ULTRASIP® EXTRA (OSB-3 Калевала 12 мм, пенопласт ППС-17 высокой реальной плотности - 18 кг/м3).
Нулевое и чердачное перекрытия SIP панелей толщиной 224 мм, межэтажное - по каркасной технологии. Наружные стены из СИП-панелей 174 мм. Перегородки внутри - каркасные, обшиты с одной стороны ОСБ 12 мм.
Пиломатериал, применяемый при сборке дома - камерной сушки влажностью 10-16%, простроган на четырехстороннем станке, и заранее, в цеху, обработан антисептиком.