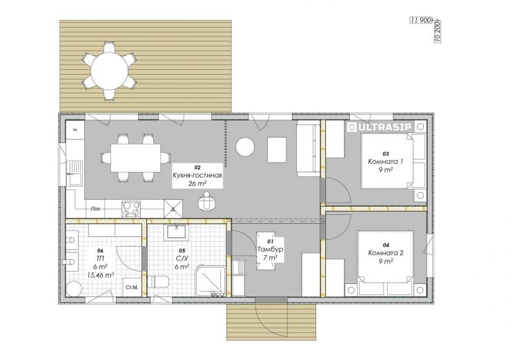
Мы построили этот небольшой, но продуманный дом из СИП-панелей в городе Луга. На наш взгляд - получилась оптимальная для такого метража планировка и гармоничный внешний вид, типичный для скандинавской архитектуры. В доме две комнаты, гостиная, санузел и техпомещение "под газ", предусмотрена просторная терраса.