Мы построили этот истинно скандинавский коттедж в ближайшем пригороде Петербурга - в д.Кузьминка.
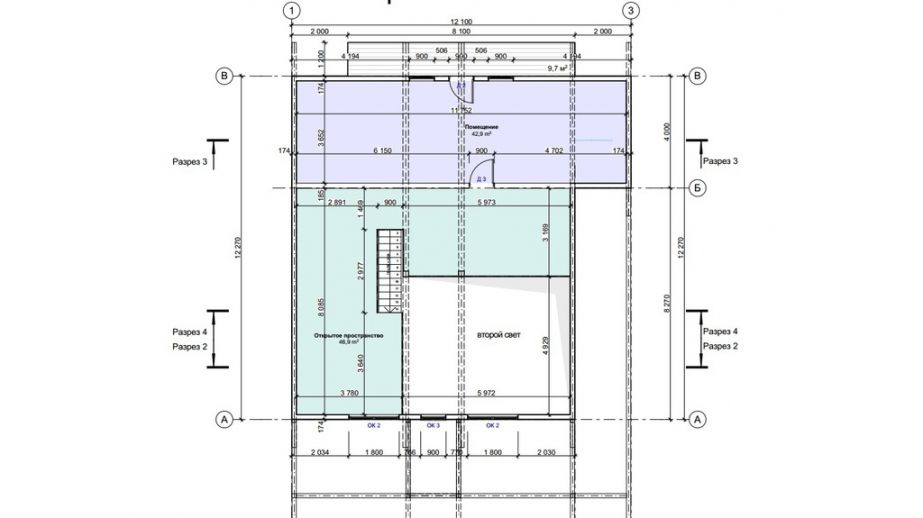
Интересна планировка - второй свет и лофт второго этажа с помещениями свободного назначения.
Весьма примечателен конструктив дома - в чердачном перекрытии использованы эксклюзивные панели ULTRASIP® EXTRA толщиной 324мм и сопротивлением теплопередаче ограждающих конструкций R=7,3
Фундамент дома - современная энергоэффективная Утепленная Шведская Плита (в цену не входит). Ее смонтировало наше фундаментное подразделение ULTRAFUNDAMENT.