Этот дом - яркий пример того, что и при небольшой площади дома можно спроектировать и реализовать комфортабельный и логичный дом для ПМЖ.
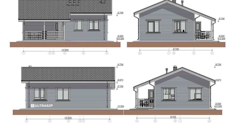
Мы построили этот дом в п. Малышево, примерно в 150-ти километрах от Санкт-Петербурга. Материал фасада - фиброцементный сайдинг.
В указанную стоимость вошел закрытый теплый контур - теплый контур, кровля, окна, техническая дверь, и конечно монтаж, доставка и все комплектующие. Стоимость УШП индивидуальна, зависит от грунтов на участке и в указанную цену не входит.