Мы построили этот классический скандинав (мы его называем "Старый Финн") в черте Санкт-Петербурга, в п.Белоостров. Интересна история проектирования этого дома - заказчик жил в исходном финском доме, и внес те корректировки, которые продиктованы именно опытом проживания.
Конструктивные и архитектурные решения:
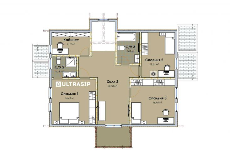
- архитектура дома - мансардный второй этаж с мансардными окнами, балкон с "юбкой" по периметру, открытая терраса и обширная кухня-гостиная - яркий образец классической скандинавской школы;
- фундамент дома - современная энергоэффективная Утепленная Шведская Плита (в указанную цену не входит). Ее смонтировало наше фундаментное подразделение ULTRAFUNDAMENT. ;
- окна Schüco LivIng 82 со стеклопакетом X-One Multi;
- фасад дома - из скандинавской доски с поднятым ворсом, покрашенной на производстве и смонтированной по всем финским канонам.
В указанную цену вошел закрытый теплый контур, с кровлей, окнами, дверью, комплектующими, доставкой и сборкой. УШП и фасад в указанную цену не входят.