В двадцать пятый раз мы построили дом по проекту Оптимум! Этот мега-популярный проект очень продуман, и заслуженное получил признание наших, и не только наших заказчиков. По нему строят дома из разных материалов по всей России.
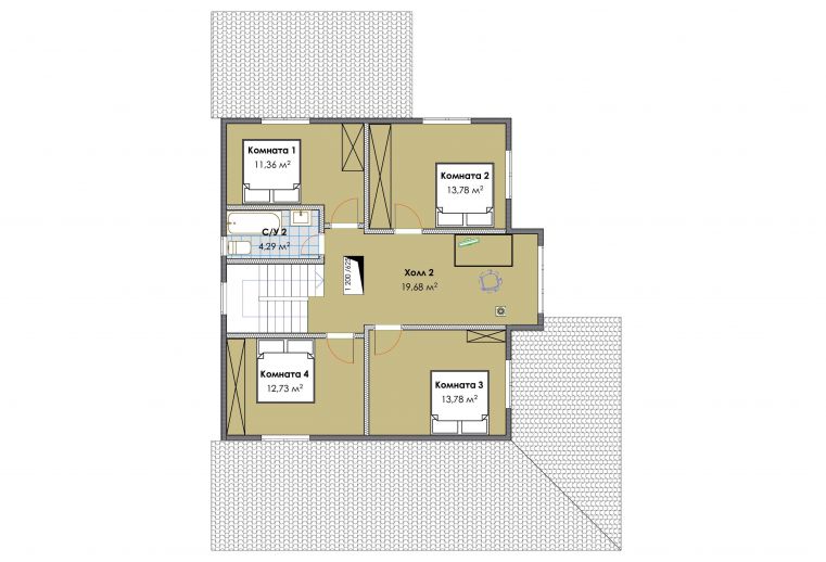
Идеальный набор помещений: 5 спален, 3 санузла, 2 гардеробных, кухня-гостиная в 43 м2. и терраса площадью 50 м2.
В указанную цену вошел закрытый теплый контур - теплый контур, кровля, окна, дверь, без стоимости УШП. Фасад из фиброцементного сайдинга смонтирован заказчиком позже.