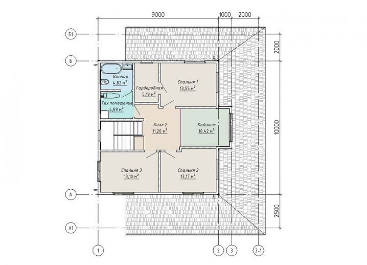
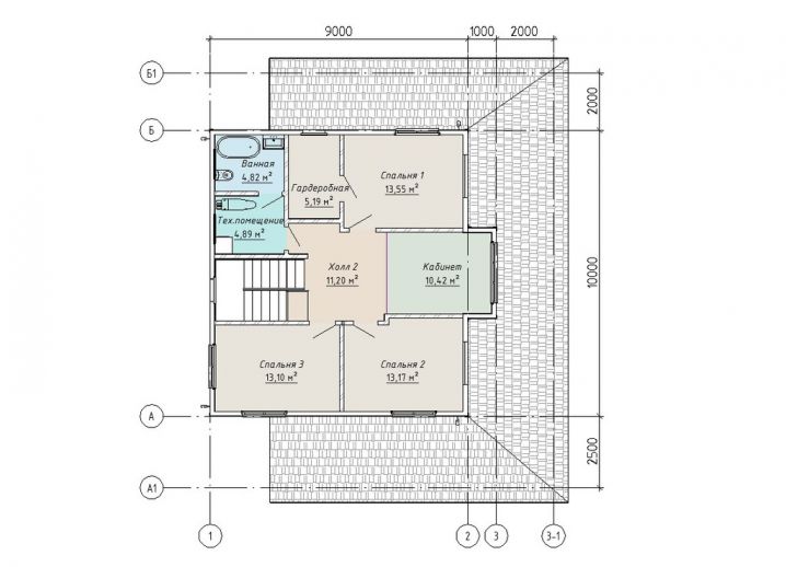
Итак, в восемнадцатый раз мы построили дом по этому популярнейшему проекту с весьма удачной планировкой, на этот раз - в п.Лемболово под Санкт-Петербургом.
Конструктив дома проверенный - в чердачном перекрытии использованы ULTRASIP® EXTRA толщиной 224мм , стены - из панелей толщиной 174мм.
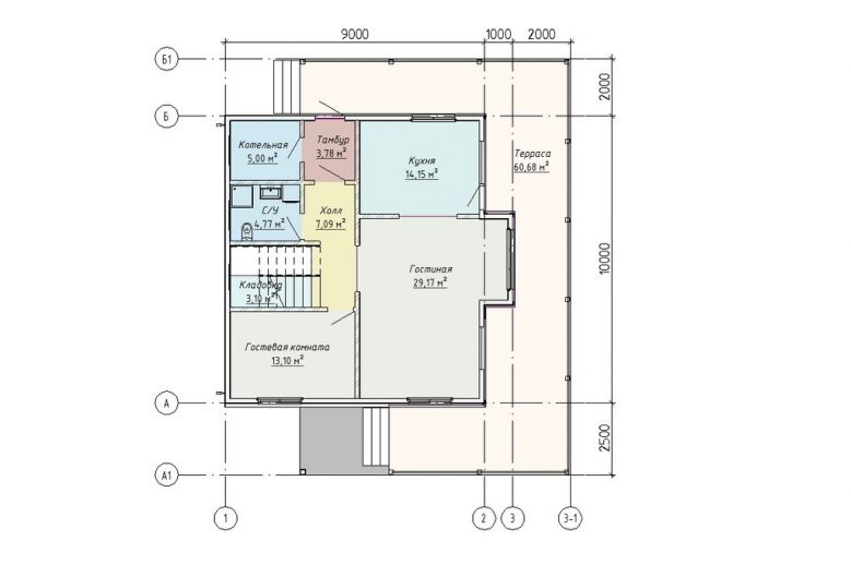
Фундамент дома - современная энергоэффективная Утепленная Шведская Плита. Ее заблаговременно смонтировало наше фундаментное подразделение ULTRAFUNDAMENT .