В тридцатый раз мы строим дом по этому мега-популярному проекту. Он продуман, рационален, комфортен и заслуженно получил признание наших, и не только наших заказчиков. По нему строят дома из разных материалов по всей России.
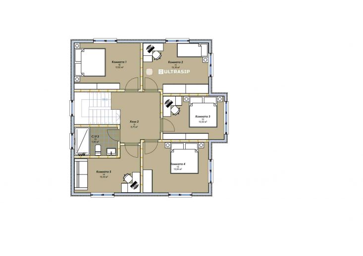
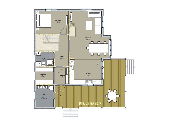
Идеальный набор помещений: 5 спален, 3 санузла, 2 гардеробных, кухня-гостиная в 43 м2. и терраса площадью 50 м2.
В указанную цену вошел закрытый теплый контур - фундамент (здесь ЖБ-сваи), теплый контур, терраса, кровля с системами водостока и снегозадержания, окна, дверь, и конечно доставка, сборка и комплектующие. Также включена фасадная отделка из фиброцементного сайдинга Дековер.