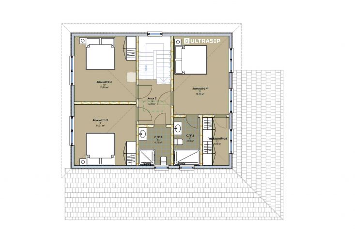
Две гардеробных и три(!) санузла - пока это наш компоновочный рекорд, особенно учитывая относительно небольшую площадь дома.
Итак, строим в Федоровском дом, спроектированный нами под участок и под запросы владельцев..
В указанную цену вошел закрытый теплый контур - теплый контур, терраса, кровля с системами водостока и снегозадержания, окна, дверь, фасад (здесь - скандинавская доска с поднятым ворсом) и конечно доставка, сборка и комплектующие. Стоимость УШП, заранее смонтированного нашим фундаментным подразделением, в указанную цену не входит.