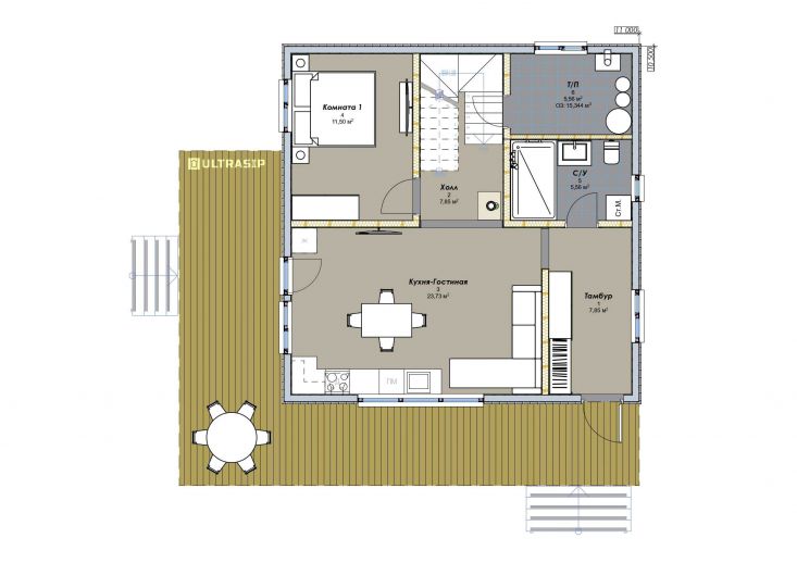
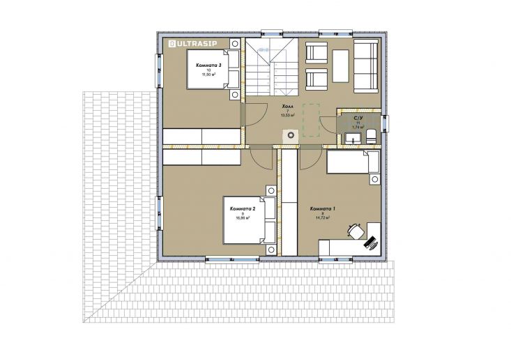
Квадратная форма дома и полноценный второй этаж - решение, позволяющее выжать максимум из каждого квадратного метра дома.
По соотношению цена/количество дома кубик тоже вне конкуренции. Внешний вид такого дома не вершина архитектуры, но - непростые времена требуют таких рациональных решений.
Как обычно, дом адаптирован под участок, и при проектировании учтены десятки факторов, влияющие на комфорт домочадцев.
Комплектация - закрытый теплый контур - дом с фасадом, окнами, входной дверью, террасой с перилами и крыльцом, системами снегозадержания и водосточной и т.д., но без внутренней отделки.
Дом построен в ипотеку от СБЕРа.