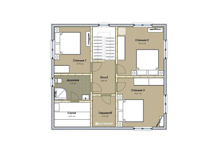
Архитектура дома подчинена оптимальному соотношению цена/площадь, в доме нет ничего лишнего, но есть все для жизни будущих владельцев. Предусмотрено все для комфортной загородной жизни - кухня-гостиная площадью 35м2, терраса, два санузла, кладовая, гардеробная, сауна, техпомещение и четыре жилых комнаты. Учтены инсоляция, вид из окон, расположение заезда, наличие шумных соседей и трасс по соседству, и еще множество нюансов.
В указанную цену входит дом в комплектации Оптимум - это фундамент, закрытый теплый контур с фасадом, окнами, дверью, вентпакетом УЛЬТРАВЕНТ, готовой террасой и крыльцом, системами снегозадержания и водостока, без внутренней отделки.