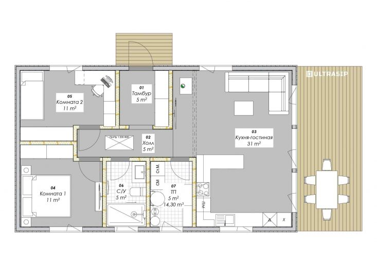
Небольшая площадь дома вследствие ограниченного бюджета - увы, частая ситуация сегодня. Однако, несмотря на это, в доме есть все, что нужно для комфортной жизни - потолки высотой 3м, кухня-гостиная площадью 31м2, приличная терраса, санузел, техпомещение и две жилых комнаты. Дом адаптирован под участок и пожелания заказчиков, учтены инсоляция, вид из окон, расположение заезда, наличие шумных соседей и трасс по соседству, и еще множество нюансов.
Дом построен в нетипичной для нас комплектации Смарт - это фундамент, закрытый теплый контур без фасада, с окнами, лагами под террасу и крыльцо, без внутренней отделки и инженерных сетей.