Мы построили этот комфортабельный дом в ближайшем пригороде Петербурга - в п.Велигонты.
Проект дома - индивидуальный, учтены все пожелания заказчика.
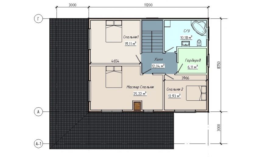
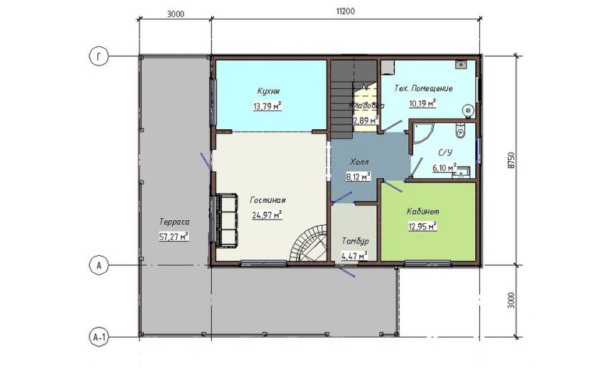
В доме - 4 больших спальни, 2 санузла, две гардеробные и обширная кухня-гостиная площадью 40 м2.
Фундамент дома (входит в цену) - современная энергоэффективная Утепленная Шведская Плита (УШП). Ее заранее смонтировало наше фундаментное подразделение ULTRAFUNDAMENT.