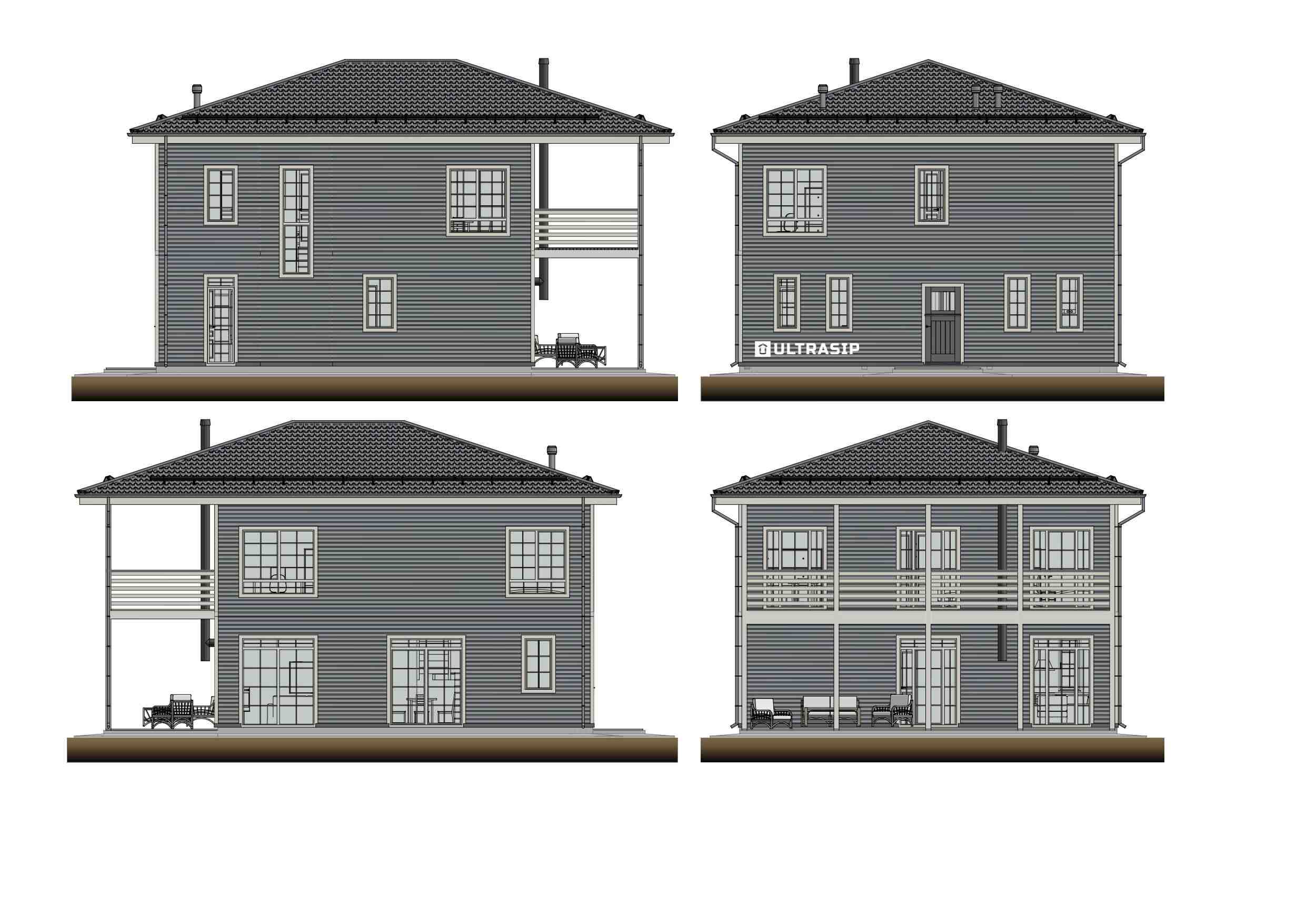
Дом такой площади и с таким (30м2.!) балконом - сегодня редкость. Исходные эскизы были адаптированы под участок, учтены пожелания заказчика, при проектировании мы учли сотни нюансов, и уже приступили к постройке этого дома в пригороде Москвы.
В указанную цену входит теплый контур без окон, фасада и отделки - редко строим дома в такой комплектации, но таково было желание заказчика.
Фундамент УШП (Утепленная Шведская Плита) с плитной террасой был смонтирован нами заблаговременно.