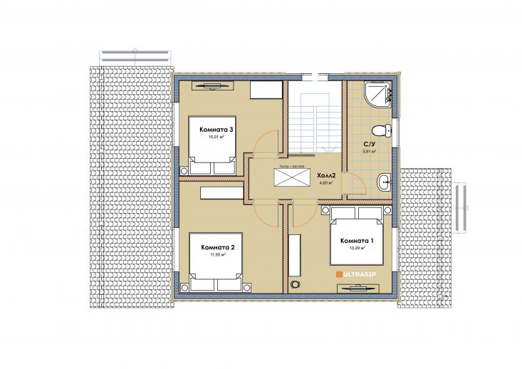
Основной запрос заказчика при проектировании этого дома - это оптимальное соотношение площадь/стоимость/удобство проживания за городом.
Отвечая на этот запрос, нами был спроектирован рациональный и удобный дом с минимально возможным для двухэтажного дома размером.
Мы построили его недалеко от Санкт-Петербурга, в г. Любань.
В указанную стоимость вошел закрытый теплый контур - фундамент, теплый контур, кровля, терраса, окна, техническая дверь, и конечно сборка, доставка и все комплектующие.