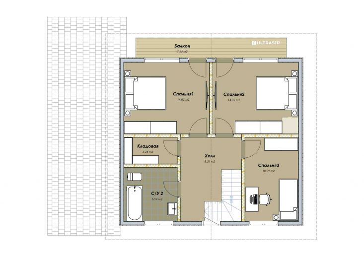
Отточенная планировка, и классический внешний вид - таков наш девятый дом по проекту Сканди-140. Предусмотрено все, что нужно для комфортной жизни - кухня-гостиная площадью 28м2., большая удобная терраса, балкон, два санузла, кладовая, техпомещение "под газ" и четыре жилых комнаты. Дом адаптирован под участок и пожелания заказчиков, учтены инсоляция, вид из окон, расположение заезда, наличие шумных соседей и трасс по соседству, и еще множество нюансов.
В указанную цену входит дом в комплектации Оптимум - это фундамент, закрытый теплый контур с фасадом, окнами, дверью, вентпакетом УЛЬТРАВЕНТ, готовой террасой и крыльцом, системами снегозадержания и водостока, без внутренней отделки и инженерных сетей.