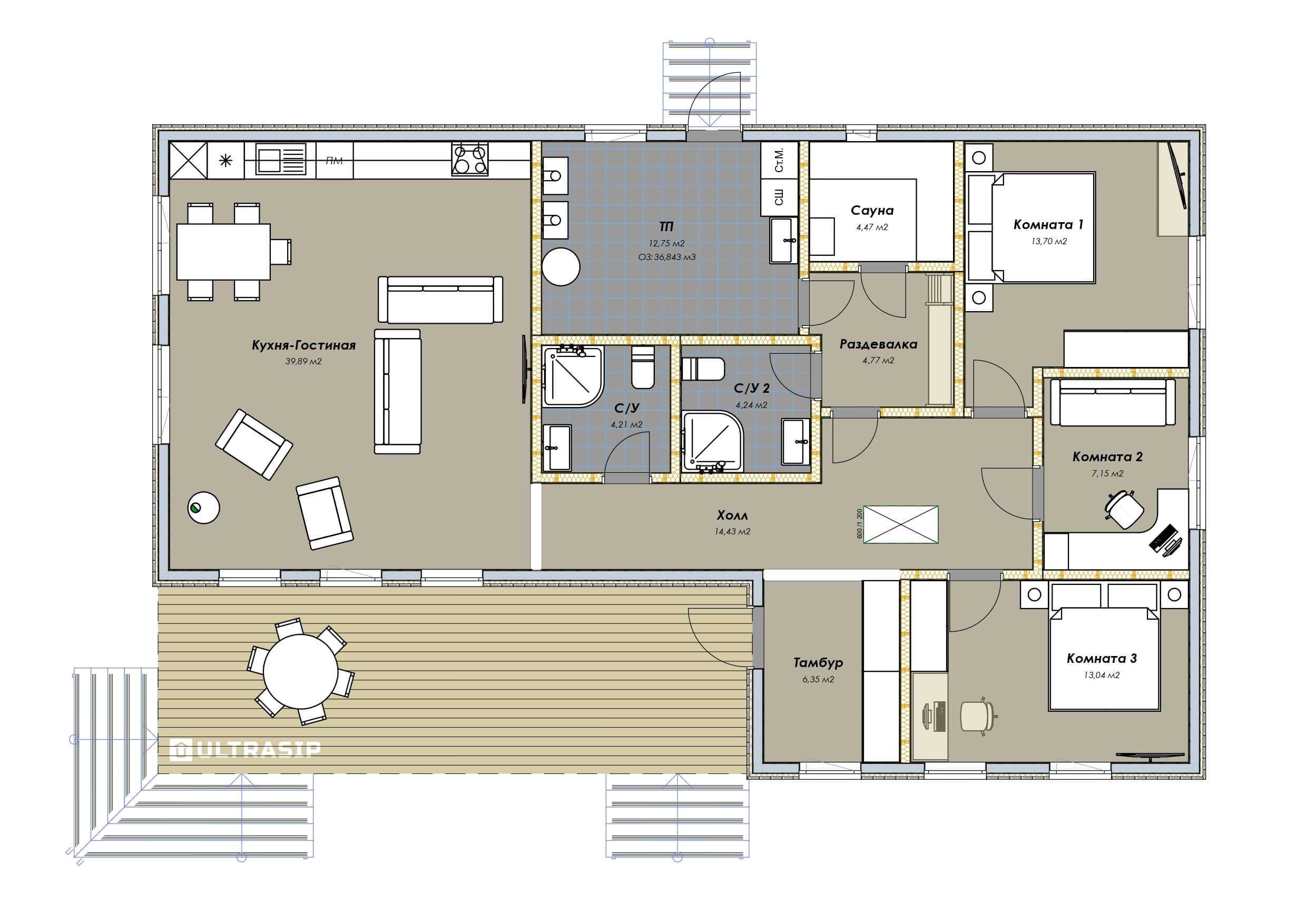
Классический "скандинавский" внешний вид и продуманная планировка- таков наш новый дом в Лемболово. Предусмотрено все, что нужно для комфортной жизни - кухня-гостиная площадью 40м2. с объемным "вторым светом", два санузла, сауна, большое техпомещение "под газ" и три жилых комнаты. Дом адаптирован под участок и пожелания заказчиков, учтены инсоляция, вид из окон, расположение заезда, наличие шумных соседей и трасс по соседству, и еще множество нюансов.
В указанную цену входит дом в комплектации Смарт - это фундамент, закрытый теплый контур с окнами, дверью, вентпакетом УЛЬТРАВЕНТ, готовой террасой и крыльцом, системой снегозадержания, без наружной и внутренней отделки.