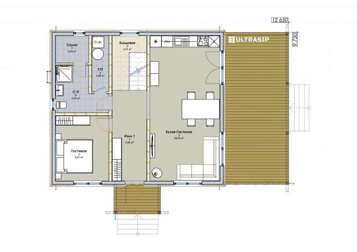
Пристроили дом традиционной архитектуры в Полянах, в Выборгском районе Ленинградской области.
При внешней простоте дома, он максимально удобен и комфортен для будущих жильцов. Почему? Все просто.
Дом "вписан" в участок, учтены абсолютно все нюансы - инсоляция, вид из окон, наличие шумных соседей и шумных трасс по соседству, и конечно архитектурное решение дома учитывает пожелания его будущих хозяев.
Цена указана за закрытый теплый контур - фундамент, теплый контур, окна и дверь. Фасад (скандинавская доска с поднятым ворсом) и внутренняя отделка в цену не включены.