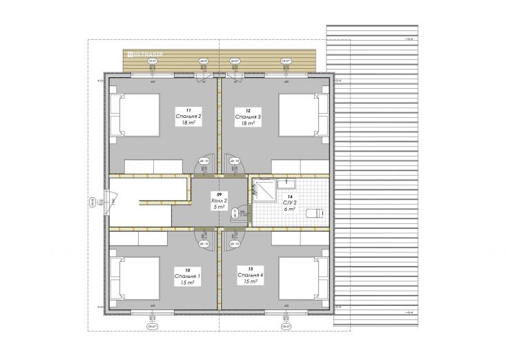
Шестая вариация нашего проверенного проекта Сканди-190. Мы адаптировали исходный проект под участок, вид из окон, соседей, пожелания заказчиков и учли сотни нюансов, и уже приступили к постройке этого дома в КП Сувантоярви под Санкт-Петербургом.
Дом строится в комплектации "закрытый теплый контур" - с фасадом, окнами, входной дверью, системами снегозадержания и водостока, террасой, балконом, перилами, крылечками, отделкой цоколя и вентпакетом УЛЬТРАВЕНТ.
Монтаж инженерных сетей и внутренней отделки в этом доме пока не планируется.