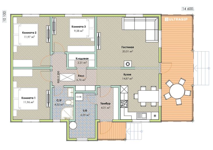
Этот продуманный одноэтажный дом с ярко выраженными скандинавскими мотивами мы построили в п. Пятиречье, что под Санкт-Петербургом.
Проект дома - индивидуальный. Традиционно для нас, дом вписан в участок и при проектировании учтена и обсуждена с заказчиком каждая мелочь.