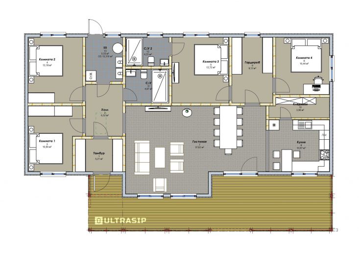
Типично скандинавский формат и экстерьер, и адаптированная под участок и под желания заказчиков планировка - таков построенный нами дом в д. Рахья. Предусмотрено все, что нужно для комфортной жизни - кухня-гостиная со "вторым светом" площадью 38м2, удобная терраса, два санузла, гардеробная, кладовка, техпомещение и четыре жилых комнаты. Учтены инсоляция, вид из окон, расположение заезда, наличие шумных соседей и трасс по соседству, и еще множество нюансов.
Дом построен нами в комплектации Оптимум - это фундамент, закрытый теплый контур с фасадом, окнами, дверью, вентпакетом УЛЬТРАВЕНТ, готовой террасой и крыльцом, системами снегозадержания и водостока. Внутреннюю отделку заказчик решид сделать самостоятельно.