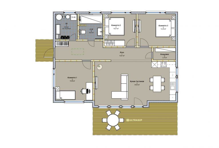
Планировка, практически идеальная для семьи из трех человек (родители и ребенок), и классический внешний вид - таков наш новый дом в ипотеку от ДОМ.РФ в КП Сувантоярви. Предусмотрено все, что нужно для комфортной жизни - кухня-гостиная площадью 35м2. с объемным "вторым светом", большая удобная терраса, один санузел, кладовка (может стать вторым санузлом), техпомещение и три жилых комнаты. Дом адаптирован под участок и пожелания заказчиков, учтены инсоляция, вид из окон, расположение заезда, наличие шумных соседей и трасс по соседству, и еще множество нюансов.
В указанную цену входит дом в комплектации Оптимум - это фундамент, закрытый теплый контур с фасадом, окнами, дверью, вентпакетом УЛЬТРАВЕНТ, готовой террасой и крыльцом, системами снегозадержания и водостока, без внутренней отделки. Дом построен в марте 2023 года.