Комфортный для загородной жизни и функциональный дом мы построили для заказчика из пригорода Санкт-Петербурга, в п.Стеклянный.
Ярко выраженный скандинавский стиль, второй свет в гостиной и нечасто встречающийся у нас балкон - все это получит наш заказчик по окончании стройки.
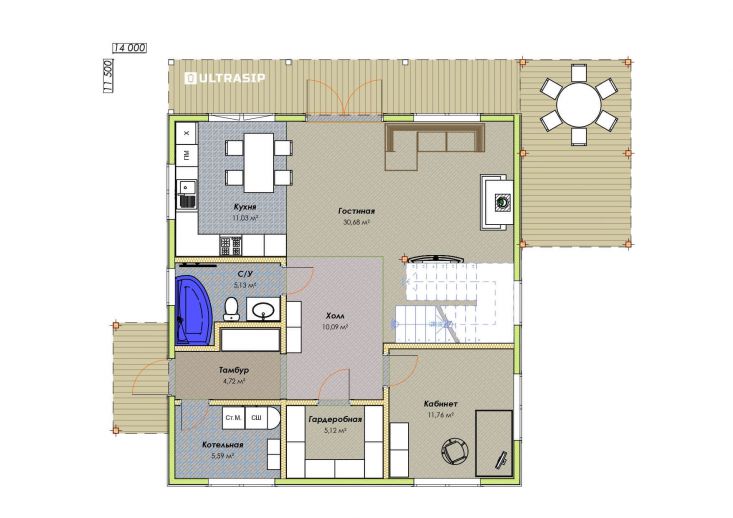
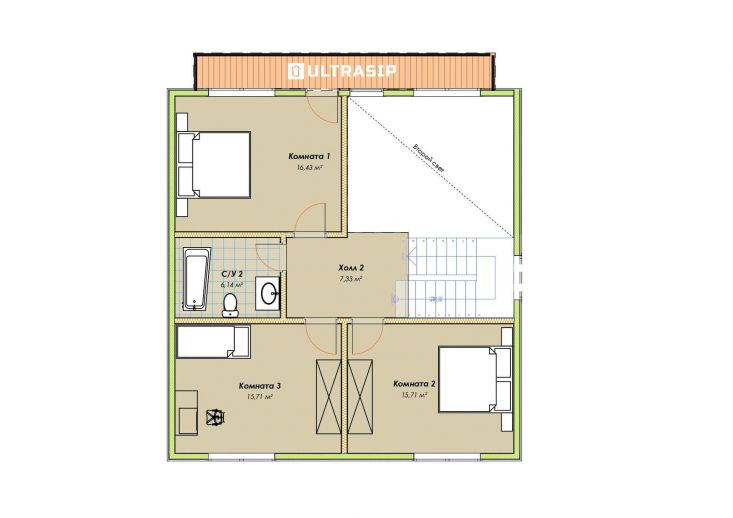
За основу взят наш популярный проект Сканди-190.
Цена указана за закрытый теплый контур - фундамент на ЖБ сваях, теплый контур, кровля, настил террасы из лиственницы, окна, дверь.