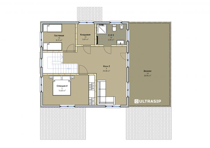
В ближайшем пригороде Санкт-Петербурга мы построили нетипичный двухэтажный дом.
Кровля холодная односкатная, с парапетами и малым углом наклона. Фасад здесь будет из брашированной доски, сейчас ждем его готовности.
В указанную стоимость вошел закрытый теплый контур - теплый контур, кровля, окна, техническая дверь, и конечно монтаж, доставка и все комплектующие. Стоимость УШП фасадной отделки, а здесь мы применили брашированную доску, в указанную цену не вошла.